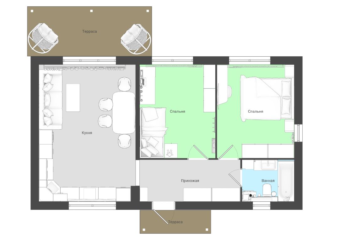
Скандинавия 66

Уютный дом с 2-мя спальнями и кухней-гостиной

Фасады и разрез


Проект дома


30.000 руб.
вместо 90.000 руб.

  • Подробный проект будущего дома вместе с визуализацией интерьера
  • Архитектурный раздел
  • Конструктивный раздел
Теплый контур


от 4.000.000 руб.


  • В данную стоимость включены следующие работы:
  • Фундамент с черновым полом
  • Инженерные коммуникации под домом
  • Стены + перегородки
  • Перекрытие + кровля
  • Остекление и дверь
Предчистовая отделка


от 5.300.000 руб.


  • Дополнительно к теплому контуру:
  • Система отопления с установкой газового котла
  • Электрическая разводка
  • Гипсовая штукатурка стен
  • Электрическая разводка
Получить консультацию
+79510997606