Календарио

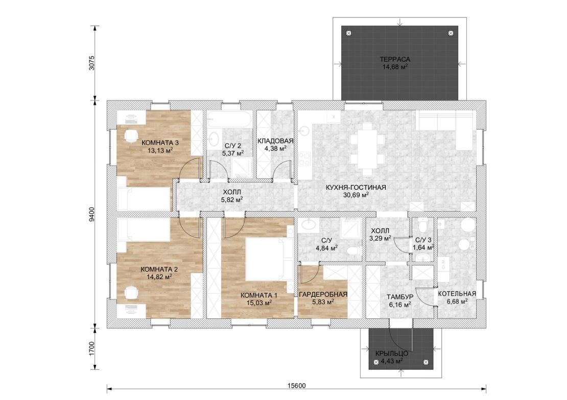
Проект дома "Календарио" с общей площадью 137 квадратных метров, из которых 117 квадратных метров это жилая отапливаемая площадь. Фундаментом для этого дома служит монолитная плита, обеспечивающая надежную основу и долговечность строения. Основные стены выполнены из качественного газобетона D500 толщиной 400 мм, что обеспечивает отличную теплоизоляцию и комфортное проживание. Конструкция наружного контура стен однослойная и не требует дополнительного утепления, что делает процесс строительства более экономичным и эффективным. Утепление по деревянному перекрытию толщиной 200 мм гарантирует сохранение тепла в доме в любое время года. Кровельное покрытие выполнено из мягких материалов, обеспечивая надежную защиту от внешних воздействий и сохраняя целостность дома на протяжении многих лет. Создайте свой идеальный уголок комфорта и безопасности с проектом "Календарио" уже сегодня!

Фасады и разрез


Проект дома


30.000 руб.


  • Подробный проект с возможностью скачивания 3d модели будущего дома
  • Архитектурный раздел
  • Подготовительные работы
  • Инженерные сети и коммуникации
  • Конструктивный раздел
  • Смета на строительство
Теплый контур


от 9.000.000 руб.


  • В данную стоимость включены следующие работы:
  • Фундамент с черновым полом
  • Инженерные коммуникации под домом
  • Стены + перегородки
  • Перекрытие + кровля
  • Остекление и дверь
Предчистовая отделка


от 10.750.000 руб.


  • Дополнительно к теплому контуру:
  • Система отопления с установкой газового котла
  • Электрическая разводка
  • Гипсовая штукатурка стен
  • Электрическая разводка
Получить консультацию
+79510997606