Глемис

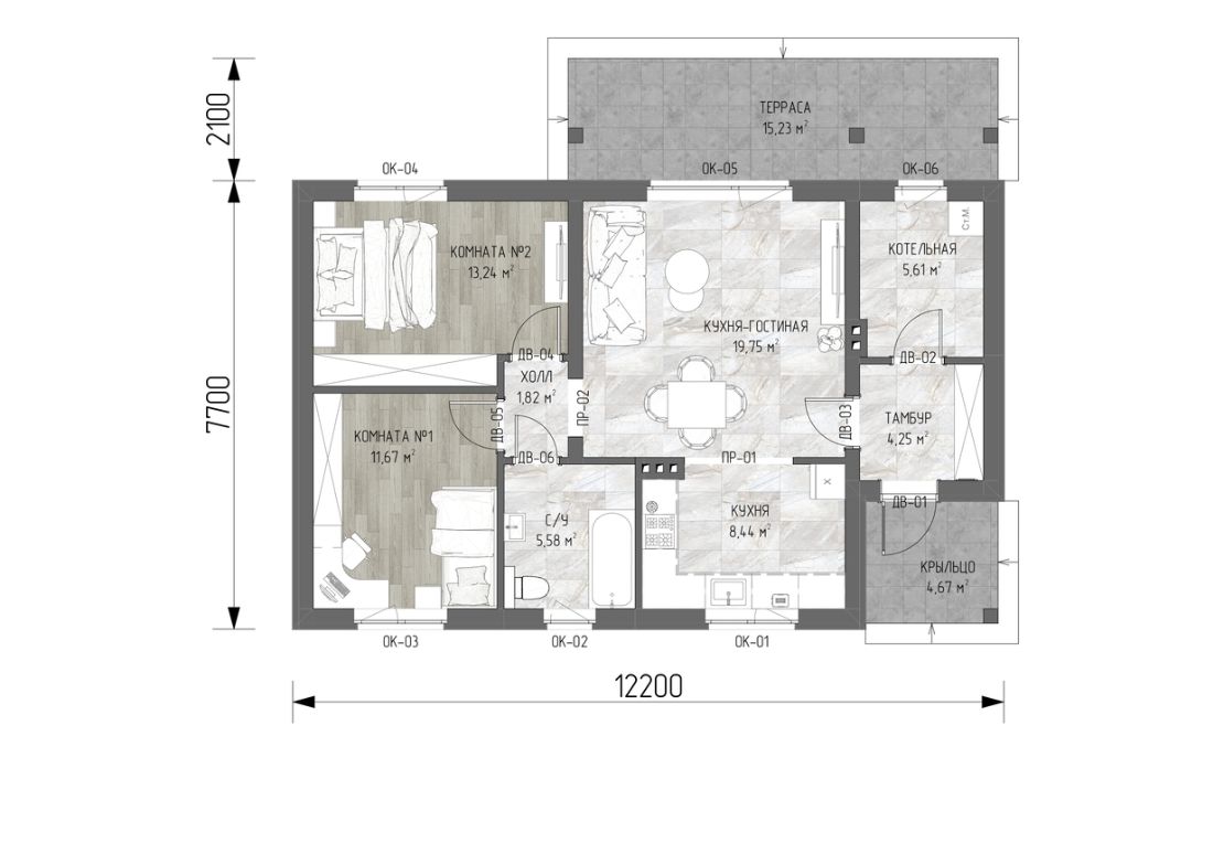
Проект дома "Глэмис" общей площадью 90 квадратных метров, с жилой отапливаемой площадью 70 квадратных метров. Для этого проекта используется ленточно-свайный фундамент, на который заливается плита с предварительной забутовкой цокольного пространства. Это позволяет строить как на ровных, так и на участках с уклоном до 60 см. Стена многослойная, сделанная из пустотелого кирпича 2,1НФ, с утеплением каменной ватой Техноблок Стандарт толщиной 100 мм. Фасад выполнен из декоративной штукатурки по ситстеме Церезит, придавая дому стильный внешний вид. Чердачное перекрытие выполнено из дерева толщиной 200 мм. Кровельное покрытие представляет собой мягкую черепицу, обеспечивая надежную защиту от внешних воздействий.

Фасады и разрез


Проект дома
включая 3d модель дома

30.000

  • Подробный проект с возможностью скачивания 3d модели будущего дома
  • Архитектурный раздел
  • Подготовительные работы
  • Инженерные сети и коммуникации
  • Конструктивный раздел
  • Смета на строительство
Теплый контур

от 6.500.000 руб.

  • В данную стоимость включены следующие работы:
  • Фундамент с черновым полом
  • Инженерные коммуникации под домом
  • Стены + перегородки
  • Перекрытие + кровля
  • Остекление и дверь
Предчистовая отделка

от 7.900.000 руб.

  • Дополнительно к теплому контуру:
  • Система отопления с установкой газового котла
  • Электрическая разводка
  • Гипсовая штукатурка стен
  • Электрическая разводка
Получить консультацию
+79510997606