ДЖОТТО

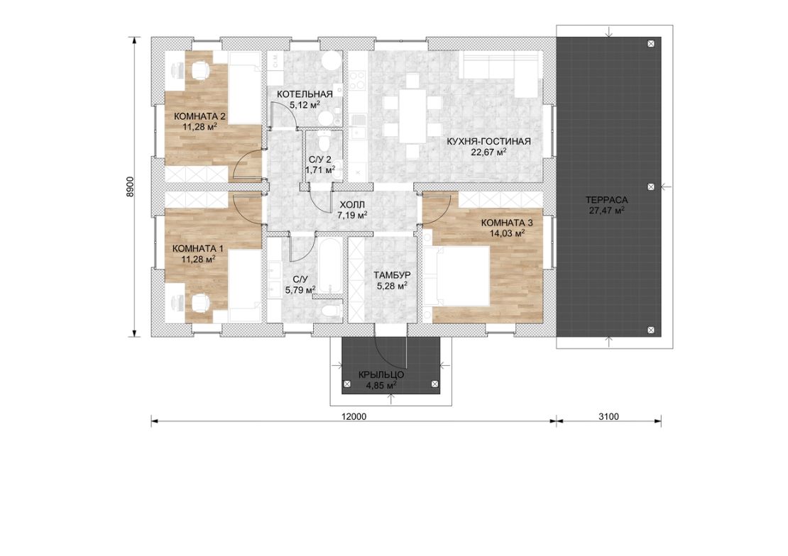
Проект дома "Джотто" с общей площадью 117 квадратных метров, включая жилую отапливаемую площадь в 84 квадратных метра. Фундаментом для этого дома служит монолитная плита, обеспечивающая надежную основу и долговечность строения. Основные стены выполнены из высококачественного газобетона D500 толщиной 400 мм. Конструкция наружного контура стен однослойная и не требует дополнительного утепления, что делает процесс строительства более эффективным и экономичным. Утепление по деревянному перекрытию толщиной 200 мм гарантирует сохранение тепла в доме. Кровельное покрытие выполнено мягким материалом, обеспечивая надежную защиту от внешних воздействий. Создайте свой уютный дом с проектом "Джотто" уже сегодня!

Фасады и разрез


Проект дома


30.000 руб.


  • Подробный проект с возможностью скачивания 3d модели будущего дома
  • Архитектурный раздел
  • Подготовительные работы
  • Инженерные сети и коммуникации
  • Конструктивный раздел
  • Смета на строительство
Теплый контур


от 8.800.000 руб.


  • В данную стоимость включены следующие работы:
  • Фундамент с черновым полом
  • Инженерные коммуникации под домом
  • Стены + перегородки
  • Перекрытие + кровля
  • Остекление и дверь
Предчистовая отделка


от 10.400.000 руб.


  • Дополнительно к теплому контуру:
  • Система отопления с установкой газового котла
  • Электрическая разводка
  • Гипсовая штукатурка стен
  • Электрическая разводка
Получить консультацию
+79510997606