БОДИАМ

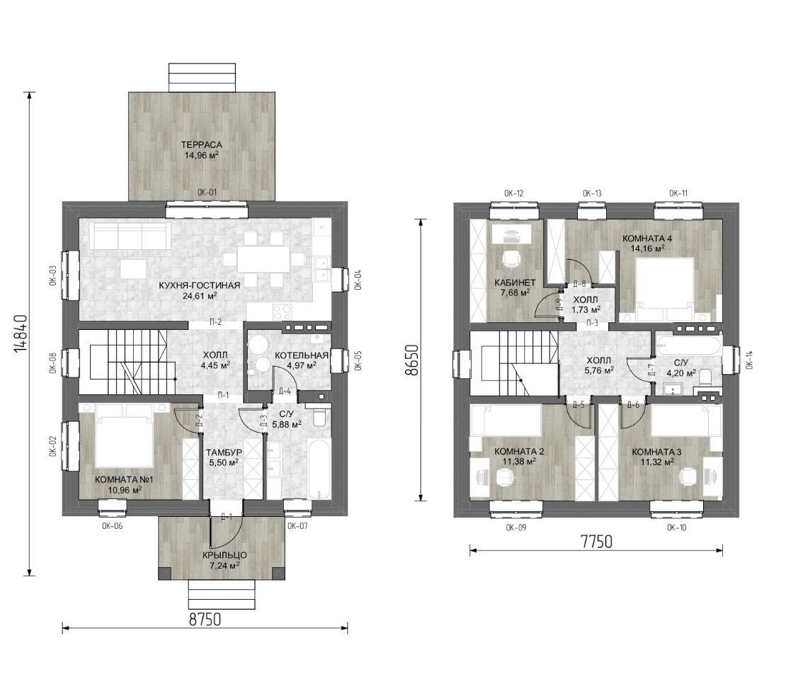
Проект двухэтажного дома "Бодиам" общей площадью 135 квадратных метров, с жилой отапливаемой площадью 112 квадратных метров, представляет собой инновационное решение для комфортного проживания. Фундаментом для этого проекта выбран ленточно-свайный тип, на который уложены плиты перекрытия, что обеспечивает возможность строительства на различных участках, даже с небольшим уклоном до 60 см. Стена дома имеет многослойную конструкцию, включающую пустотелый кирпич 2,1НФ, а утепление выполнено каменной ватой Техноблок Стандарт толщиной 100 мм, обеспечивая эффективную теплоизоляцию. Межэтажное перекрытие выполнено из железобетонных плит, что гарантирует прочность и долговечность конструкции. Фасад дома оформлен с использованием облицовочного кирпича 1,4 НФ М150, придавая зданию эстетичный и современный вид. Чердачное перекрытие выполнено из дерева с толщиной 200 мм, обеспечивая надежную защиту и комфорт. Кровля покрыта металлочерепицей, обеспечивая надежную защиту от осадков и долгий срок службы.

Фасады и разрез


Проект дома


30.000 руб.


  • Подробный проект с возможностью скачивания 3d модели будущего дома
  • Архитектурный раздел
  • Подготовительные работы
  • Инженерные сети и коммуникации
  • Конструктивный раздел
  • Смета на строительство
Теплый контур


от 8.900.000 руб.


  • В данную стоимость включены следующие работы:
  • Фундамент с черновым полом
  • Инженерные коммуникации под домом
  • Стены + перегородки
  • Перекрытие + кровля
  • Остекление и дверь
Предчистовая отделка


от 10.500.000 руб.


  • Дополнительно к теплому контуру:
  • Система отопления с установкой газового котла
  • Электрическая разводка
  • Гипсовая штукатурка стен
  • Электрическая разводка
Получить консультацию
+79510997606